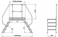
Treppen Bauart-geprüft, Fertigung in Anlehnung an europäische Norm DIN EN ISO 14122
- Stufenbreite: 600 - 800 - 1000 mm
- Plattformlänge: 460 mm
- Untere Holmenden mit Fußwinkeln zur Bodenbefestigung
- Überstieg gemäß technischer Beschreibung und Normen laut allgemeiner Information am Kapitelanfang
- Größere Plattformen und Sonderabmessungen fertigen wir gerne auf Anfrage
- Zwischenmaße liefern wir ohne Aufpreis
- Standardausführung ist Aluminium geriffelt
- Andere Beläge gegen Mehrpreis (Aluminium stark geriffelt, Aluminium-Lochblech,Aluminium-Gitterrost eloxiert, Stahl-Gitterrost und Stahl-Lochblech)
Hinweis:
Zweiter Handlauf gegen Mehrpreis (Auf Anfrage)
Infotext:
Option: Fahrbarer Überstieg: Bitte geben Sie bei Ihrer Bestellung die Option Fahrwerk an. Bei einer nachträglichen Ausstattung des bereits gelieferten Überstiegs ist ein Umbau im Werk erforderlich.
| Stufenanzahl | 3 | 4 | 5 | 6 | 7 | 8 | 9 | 10 | 11 |
| Lichte Höhe H2 (mm) | 680 | 930 | 1170 | 1415 | 1660 | 1890 | 2120 | 2350 | 2580 |
| Plattformweite L2 (mm) | 741 | ||||||||
| Gesamthöhe (mm) | 1955 | 2205 | 2445 | 2690 | 2935 | 3195 | 3395 | 3625 | 3855 |
| Ausladung (mm) | 1845 | 2082 | 2342 | 2652 | 2912 | 3182 | 3442 | 3712 | 3972 |
| Artikelnummern | |||||||||
| Stufenbreite 600/240 | 600903 | 600904 | 600905 | 600906 | 600907 | 600908 | 600909 | 600910 | 600911 |
| Stufenbreite 800/240 | 600913 | 600914 | 600915 | 600916 | 600917 | 600918 | 600919 | 600920 | 600921 |
| Stufenbreite 1000/240 | 600923 | 600924 | 600925 | 600926 | 600927 | 600928 | 600929 | 600930 | 600931 |
| Zweiter Handlauf gegen Mehrpreis | 600963 | 600964 | 600965 | 600966 | 600967 | 600968 | 600969 | 600970 | 600971 |
Option( Auf Anfrage):
Fahrbarer Überstieg: Bitte geben Sie bei Ihrer Bestellung die Option Fahrwerk an. bei einer nachträglichen Ausstattung des bereits gelieferten Überstiegs ist ein Umbau im Werk erforderlich.
Fahrwerk: Bestehend aus 2 gelben Traversen mit je 2 Lenkrollen ø160mm mit Feststeller. Traversenbreite bei 3-7 Stufen 1190mm, bei 8-11 Stufen 1570mm. Bei Überstiegen in fahrbarer Ausführung verringert sich die lichte Höhe durch die Traversen um 200mm.
| Artikelnummer | |||||||||
| Fahrwerk | 300912 | ||||||||
| Plattformlänge | 0,8 m |
|---|---|
| Neigung | 60° |
| Hersteller | Munk |
| Trittform | Stufen |
| Material | Aluminium |
| Kategorie | Treppen |
| Hersteller Firma: | MUNK GmbH |
|---|---|
| Hersteller Adresse: |
MUNK GmbH
Rudolf-Diesel-Straße 23
89312 Günzburg
Deutschland
|
| Telefonummer: | +49 8221 36 16 01 |
| E-Mail Adresse: | info@munk-group.com |
| Webseite: | www.steigtechnik.de/ |






.jpg)
















.jpg)
















